N24200

Impressão
3D_N24200_BITE_SITE_2019_02
N24200_2D
Descrição

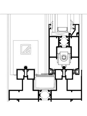
Sistema de correr perimetral com rutura de ponte térmica, linhas retas, aros fixos de 118 mm de profundidade, com opção em tri-rail e quadri-rail, e aros móveis de 81,7 mm de vista. Sistema termicamente melhorado pela inclusão de poliamidas, indo ao encontro das necessidades atuais de qualidade com performances elevadas e de fácil manuseamento.
Com múltiplas soluções construtivas, possibilita a execução de caixilhos de grandes dimensões e vãos bicolores. Permite a execução de vãos de correr tradicionais e folhas de correr eleváveis, mediante um acessório próprio que facilita a manobra e deslizamento da folha.
Com o perfil N24 263, este sistema permite a fabricação de folhas com bite, aumentando a facilidade de fabricação dos caixilhos. O perfil N24 263 permite, também, a fabricação de  folhas de correr tradicionais e folhas de correr eleváveis no mesmo caixilho.