4900 de Correr HI

Impressão
2_146 (1)
2_146
2_146z
2_146z (1)
Descrição

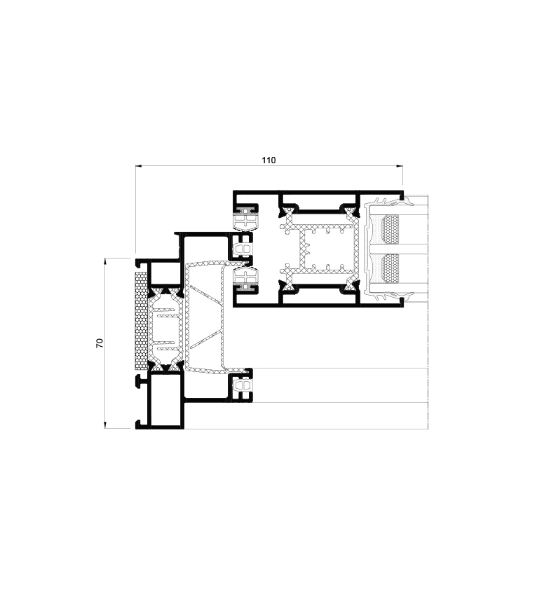
» Sistema de janelas e portas de correr de estética reta que apresenta um elemento central minimalista com apenas 35 mm de secção vista.

 

» Permite maximizar a capacidade de envidraçamento até aos 36 mm, aumentando as prestações térmicas e acústicas.

 

» Com folhas até 240 Kg de peso, permite dimensões máximas de 2200 mm de largura por 2600 mm de altura.