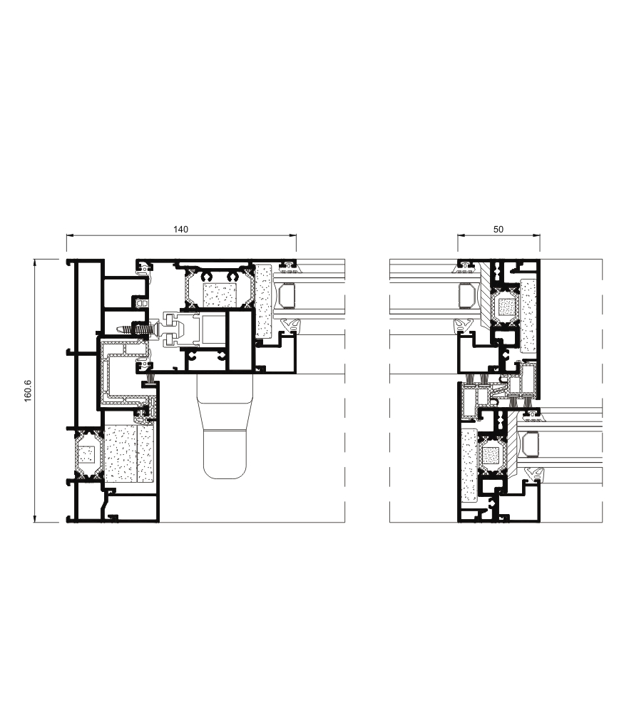
4600 de Correr Elevável HI com RPT

Impressão
2_74
2_74 (1)
2_74z
2_74z (1)
Descrição

» sistema de porta de correr elevável que apresenta excelente desempenho térmico

 

» Uw de 0,9 Wm²K

 

» Possibilidade nó central de apenas 50 mm

 

» deal para preencher grandes vãos, garantindo a máxima luminusidade

 

» Carril inoxidável que garante o deslizamento ultra-suave de grandes pesos