
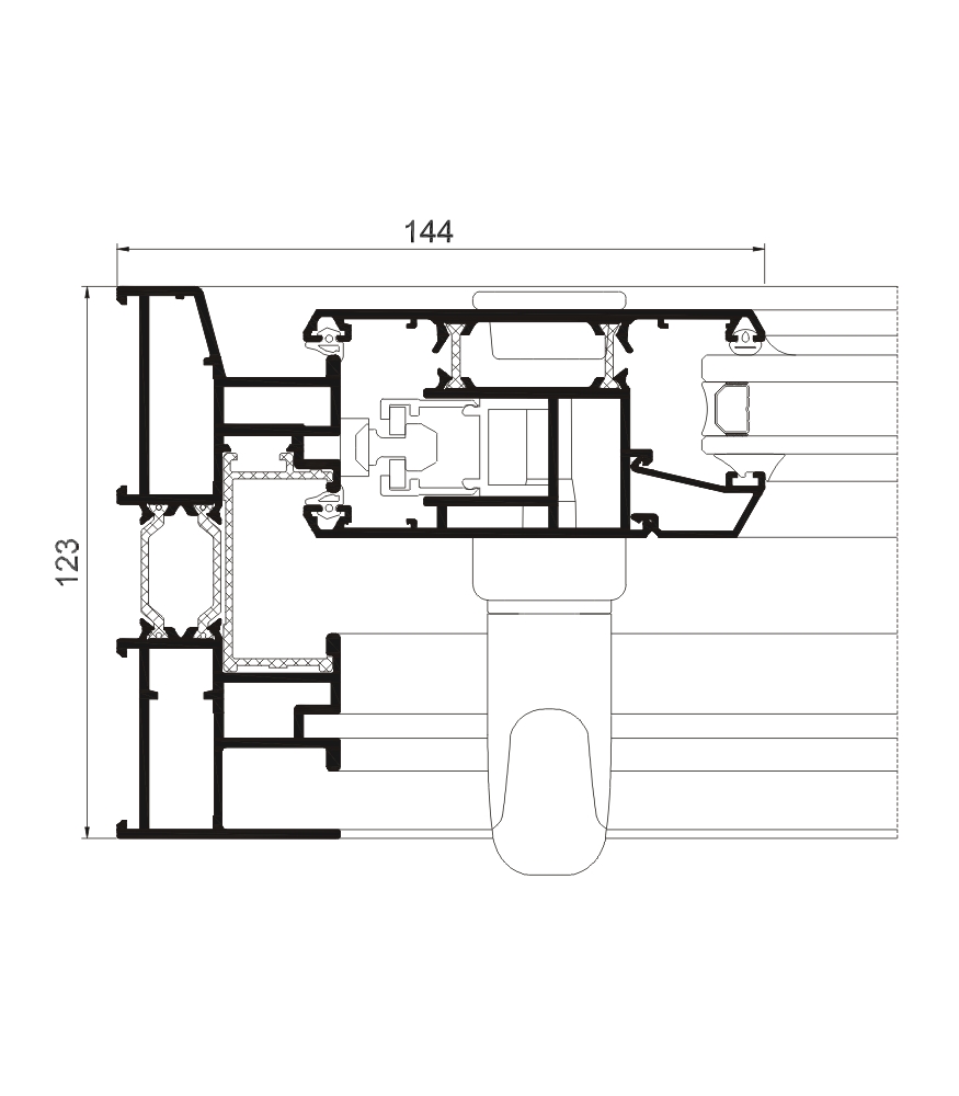
» Sistema de correr de grandes dimensões
» Disponível em duas versões:
- De correr elevável
- De correr em linha
» Possibilidade de aro fixo corte a direito ou perimetral.
» Carril inoxidável que garante o deslizamento ultra-suave de grandes pesos