N17100

Impressão
17100_02_COLA
N17100_2D_0
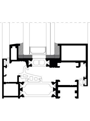
Descrição Sistema minimalista de batente, com vista em alçado de 45 mm para o conjunto aro fixo/aro móvel, que permite a execução de vãos com altura até 2700 mm e 170 kg por folha. Com profundidade de aro fixo de 73 mm, o sistema N17 100 está disponível nas tipologias de batente, oscilobatente e basculante. Em resposta às tendências da arquitetura contemporânea, o sistema permite a realização de vãos fixos e de abrir de vista reduzida, enchimentos até 34 mm e aplicação de dobradiças ocultas, resultando em elevados níveis de luminosidade, design e funcionalidade. Sendo um sistema de rutura de ponte térmica, permite vãos com acabamento bicolor.