N16100

Impressão
3D_N16100_SITE_2019_02
2D_N16100
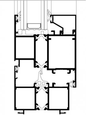
Descrição Com profundidade de aro de 70 mm, o sistema N16 100 permite a utilização de envidraçados até 65 mm, obtendo excelentes prestações térmica e acústica. Adaptado aos novos sistemas construtivos europeus, utiliza acessórios de câmara europeia. Este sistema possibilita a fabricação de portas e janelas e foi desenvolvido de modo a responder aos Requisitos Básicos do Regulamento dos Produtos da Construção: Resistência mecânica e estabilidade; Segurança contra incêndio; Higiene, saúde e ambiente; Segurança e acessibilidade na utilização; Proteção contra o ruído; Economia de energia e Isolamento térmico, tendo em consideração a utilização sustentável dos recursos naturais (ciclo de vida dos produtos). Possibilita ainda vãos com acabamento bicolor.