252 904 796
Aluminios AASS
Home
Sobre nós
Produtos
Janelas e Portas
Batente
Correr
Fachadas diversas
Jardins de Inverno
Coberturas e clarabóias
Gradeamentos
Portões de Alumínio
Portões seccionados
Estores
Brisas solares
Vidro
Obras
Contactos
Localização
Orçamentos
COR Urban C16 RPT
Alu-Steel RPT
Voltar a: CORTIZO / MARIA & MARINA
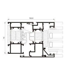
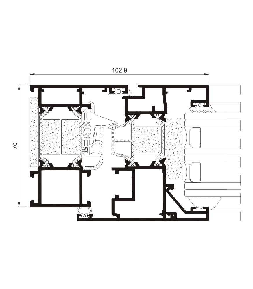
COR 70 C16 ST RPT
Pedir informações